Marden Park volleyball courts moving ahead
BRUCEDALE – The proposed volleyball courts at Marden Park are moving forward as planned, after Guelph/Eramosa council approved tendering.
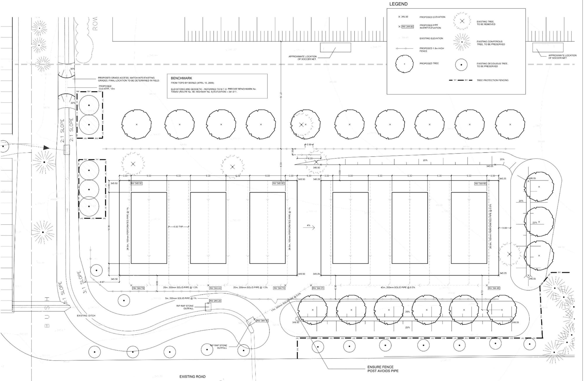
The original parks and recreation report was presented to council in February, seeking direction on the proposed 10-year agreement with Perpetual Motion Sports for the construction and use of six new volleyball courts at Marden Park.
A revised agreement was presented to council on April 7 by parks and recreation manager Jeff Myer.
The revised agreement would see the township fully responsible for constructing the six volleyball courts.
[related]
However, Perpetual Motion would pay the township the full cost of the project and in return receive exclusive use of “prime-time rental hours until the end of 2035.”
“Perpetual Motion will agree to pay the actual final cost of the project which is currently estimated at $195,000,” Myer told council.
Prime-time rental hours are Sunday to Thursday, 6:30 to 8:30pm, from May to early September.
Perpetual Motion will also receive one Saturday throughout the year to host an eight-hour tournament.
Councillor Bruce Dickieson asked how the township could be sure the project would be paid for, inquiring about a possible down payment.
“Worst case scenario but we build the thing and they say, ‘Oh we don’t want it’,” said Dickieson.
Myer confirmed the money for the project will be held in escrow, ensuring the money will be there when the final bill is presented.
“If it [the cost of the project] goes above, then they will be responsible for the additional, and if it goes below then they’ll be refunded whatever money they don’t need for the project,” said Myer.
He also assured council the soccer fields would remain.
Aside from the six new courts, a total of 19 trees are to be planted, as well as new fencing to ensure the containment of stray volleyballs and soccer balls.
According to the report, the municipality will be responsible for the maintenance of the volleyball courts’ playing surface by roto-tilling it annually and “topping up” the sand approximately once every five years.
The municipality will place approximately $4,500 annually in a reserve for when the work is required.
The report stated “staff are confident” it will be possible to generate the $45,000 required over 10 years for maintenance costs.
Council voted unanimously in favour of beginning the tendering process for the work and approved the agreement between Perpetual Motion and the township for the construction and use of the courts.
